2 pokoje po remoncie, lokal użytkowy z Kw, Ułanów

299 000 zł    10 067 zł/m²

 

 

Wykończony i wyposażony 2 pokojowy lokal użytkowy, znajdujący się na -1 kondygnacji w 2 piętrowej kamienicy przy ul. Ułanów 72, Rakowice, Czyżyny.

    • Lokal jest po remoncie, podczas którego wymieniona została instalacja elektryczna oraz wodno-kanalizacyjna. Wykonano wylewki oraz położono gładzie. Grzejniki oraz drzwi wewnętrzne i zewnętrzne wymieniono na nowe.
    • Zdjęcia przedstawiają stan faktyczny.
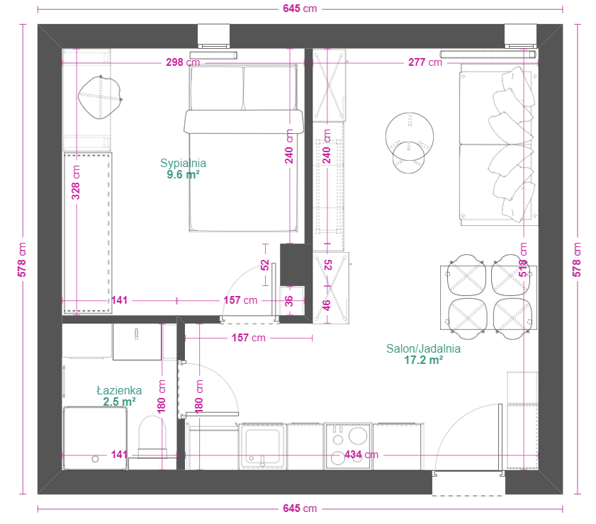
    • Rzut przedstawia rzeczywisty układ lokalu.
    • Lokal użytkowy - zakup możliwy tylko za gotówkę.


Lokal o metrażu 29,7 m2 składający się z:

    • pokoju z aneksem kuchennym
    • łazienki z prysznicem
    • przedpokoju


Lokal znajduje na
-1 kondygnacji w 2 piętrowej kamienicy z poddaszem bez windy. Lokal jednostronny, ekspozycja północno-zachodnia. Wysokość sufitów około 2,75 m2. Ogrzewanie i ciepła woda z sieci miejskiej. Czynsz wynosi około 650 zł/miesiąc. Budynek z cegły z około 1940 r. Kamienica świeżo po remoncie elewacji (wraz z ociepleniem) oraz remoncie klatki schodowej.

Parking ogólnodostępny przed budynkiem, od strony dziedzińca znajduje się kilka miejsc postojowych tylko dla mieszkańców. Zielona okolica. Ścieżki rowerowe w bliskiej odległości.

W pobliżu znajdują się m. in.:sklepy, restauracje i pizzerie, piekarnie, apteka, przedszkole, szkoła, plac zabaw, McDonald, stacja paliw, Park Lotników, Galeria Serenada, Park Wodny, Luxmed. Rynek Główny w odległości około 4 km. Dojazd autobusem do Dworca Głównego zajmuje około 20 minut. W odległości 450 m znajduje się przystanek autobusowy Rondo Młyńskie (linie nr 124, 138, 152, 172, 182, 184, 18,9 352, 424, 502, 601, 611) oraz w odległości około 1 km znajduje się przystanek tramwajowy Tauron Arena Kraków Wieczysta.

Pełna własność z księgą wieczystą. Zakup możliwy tylko za gotówkę.

Cena lokalu wraz z wyposażeniem:
299 000 zł - meble w zabudowie, meble ruchome i AGD (lodówka, pralka, zmywarka, płyta ceramiczna, okap, piekarnik) w cenie.

Oferta na wyłączność
Numer licencji PFRN 30205
Pośredników zapraszam do współpracy.


Zapraszam do kontaktu!