Rzuty, cennik, informacja o dostępności, wielkości ogródków oraz usytuowanie miejsc parkingowych

 


Dom 5 pokoi z ogródkiem - Górna Wieś, ul. Królewska (WOLNE 6/6)

od 756 330 zł (8500 zł/m²)

 

Bezpośrednio od dewelopera - bez prowizji.

Inwestycja Górna Wieś Dream - budujemy Twoje marzenia!

 

1. Lokalizacja

Inwestycja zlokalizowana jest w miejscowości Górna Wieś, gmina Michałowice, ul. Królewska. To spokojna, zielona okolica z dogodnym dojazdem do Krakowa, idealna dla osób poszukujących harmonii między życiem miejskim a bliskością natury.

 

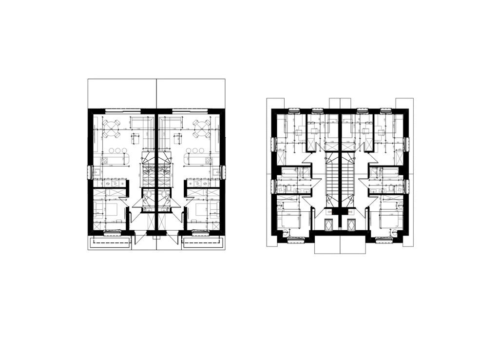
2. Opis inwestycji

Przedsięwzięcie deweloperskie obejmuje budowę trzech budynków mieszkalnych jednorodzinnych, dwulokalowych (B1, B2, B3), co daje łącznie 6 lokali mieszkalnych, każdy o powierzchni 88,98 m2. Do każdego lokalu przynależą dwa miejsca postojowe naziemne.

Układ lokalu mieszkalnego:

Parter (44,07 m2)

-wiatrołap (3,05 m2)

-hol (5,71 m2)

-toaleta (1,28 m2)

-pokój (9,25 m2)

-kuchnia (8,33 m2)

-salon (16,45 m2)


Piętro (49,52 m2)

-hol + schody (9,96 m2)

-pokój (9,27 m2)

-łazienka (5,87 m2)

-pokój (10,15 m2)

-pokój (7,39 m2)

-pomieszczenie gospodarcze (2,59 m2)


Każdy lokal mieszkalny będzie posiadał:

- wewnętrzne instalacje: elektryczną, wodociągową i kanalizacyjną, ogrzewania (pompa ciepła - ogrzewanie podłogowe)

- zewnętrzne instalacje: elektryczną, wodociągową i kanalizacyjną (eko-oczyszczalnia przydomowa)

-odwodnienie do zbiorników na wody opadowe

-pompę ciepła

-układ komunikacyjny zapewniający komfortowy dostęp do budynków

-ogródek (od 109 m2 do 306 m2)

-dwa miejsca postojowe naziemne

 

3. Standard wykończenia

Lokale zostaną oddane w stanie deweloperskim, co daje przyszłym właścicielom możliwość aranżacji wnętrz według własnych preferencji. Budynki będą wykonane z wysokiej jakości materiałów, zapewniających trwałość i energooszczędność. Szczegółowy standard wykończenia został starannie opracowany i jest dostępny do wglądu dla zainteresowanych.

 

4. Harmonogram

Planowane zakończenie inwestycji: 28 lutego 2027 r.

 

5. Cennik

Ceny od 8500 zł/m2. Cennik poszczególnych lokali dostępny jest w załączniku do niniejszej oferty.

 

6. Podstawowe odległości:

0,26 km – Przystanek Górna Wieś Pętla

0,35 km – Piekarnia Zakwas (Graniczna 116a, 32-091 Górna Wieś)

0,7 km – Studio Fryzjerskie Urszula Maliszewska

2,0 km – Kościół MB Częstochowskiej w Woli Zachariaszowskiej

2,5 km – Centrum Stomatologii Bibice

3,6 km – Biedronka (Krakowska 247, 32-091 Michałowice)

3,8 km – Apteka Zdrowie (Krakowska 209, 32-091 Michałowice)

3,9 km – Szkoła Podstawowa im. Jana Pawła II | Zespół Szkół

4,1 km – Niepubliczny Żłobek w Michałowicach Dolina Muminków (Krakowska 152, 32-091 Michałowice)

4,1 km – Niepubliczne Europejskie Przedszkole Językowe "Be Happy" (Krakowska 152A, 32-091 Michałowice)

5,5 km – Szary. Klub Jazdy Konnej

7,0 km – C.H. Atut

10,1 km – Szpital Miejski Specjalistyczny im. G. Narutowicza

13 km - Centrum Krakowa

Kontakt
Tel. 530 604 352