2 pokoje z balkonem, nowy blok, wykończone, parking, ul. Myśliwska 66C

675 000 zł (22 189 zł/m²)

 

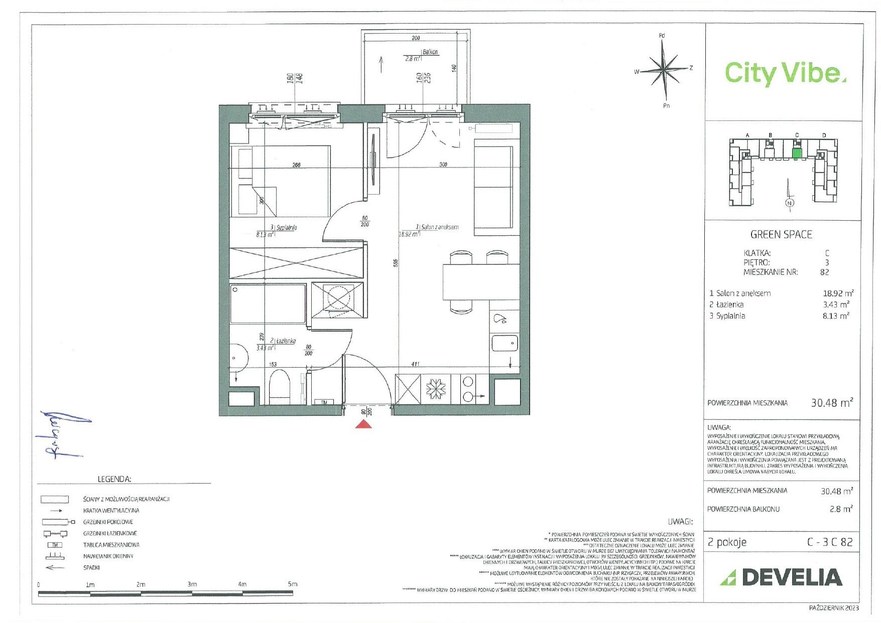
Na sprzedaż 2 pokojowe mieszkanie, wykończone i wyposażone znajdujące się na 3 piętrze, 5-piętrowego budynku z windą z roku 2025 w inwestycji City Vibe, przy ul. Myśliwskiej 66C, Płaszów.

 

Mieszkanie jest wykończone. Zdjęcia przedstawiają stan aktualny. Rzut przedstawia rzeczywisty układ mieszkania. Osiedle zostało wybudowane przez dewelopera Develia.

 

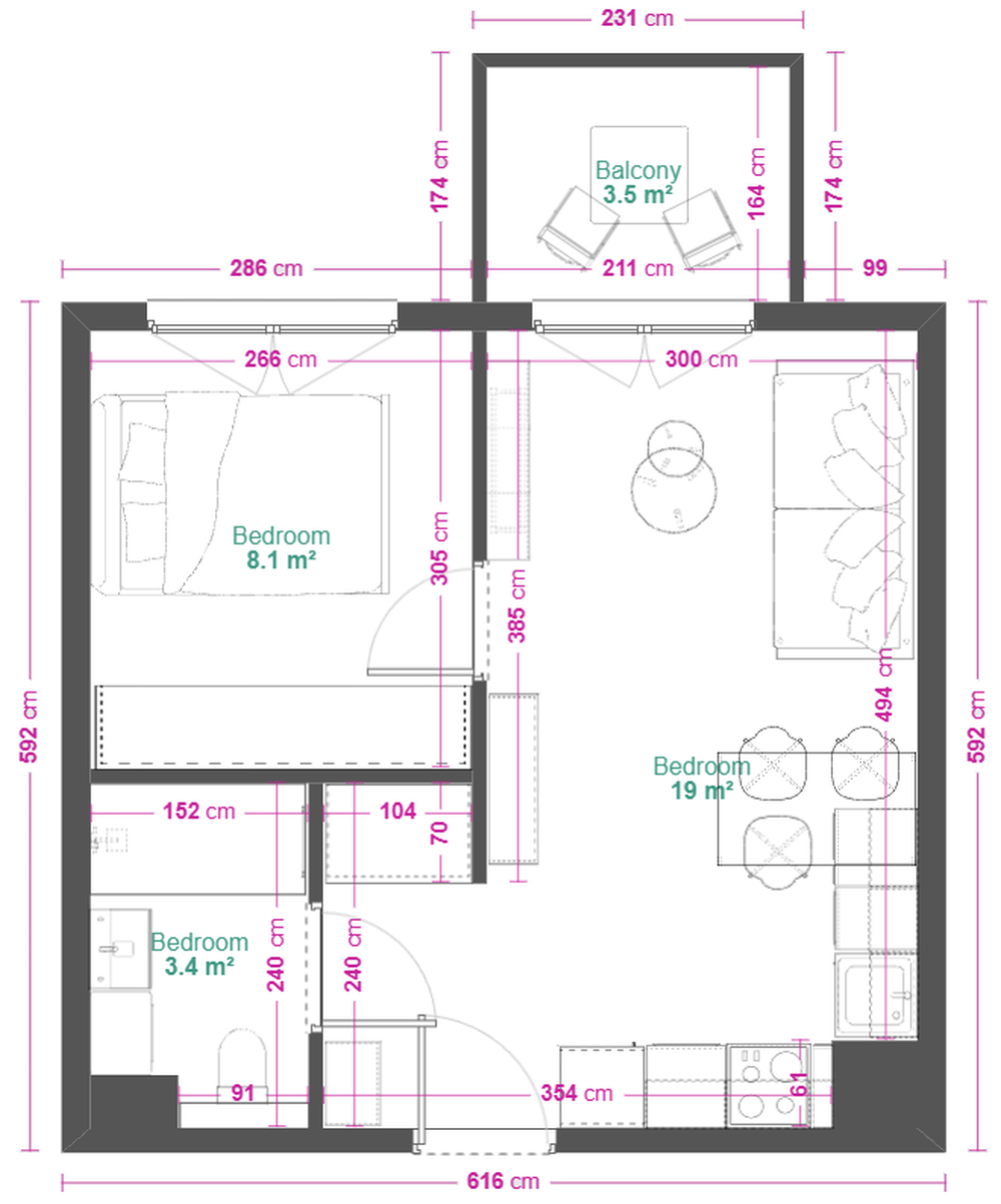
Mieszkanie o metrażu 30,42 m2 składa się z:

  • salonu z aneksem kuchennym
  • osobnej sypialni
  • łazienki

Dodatkowo do mieszkania przynależy balkon o powierzchni 3,5 m2. Wysokość mieszkania wynosi około 255 cm. Ekspozycja południowa. Czynsz wynosi około 500 zł. Ogrzewanie oraz ciepła woda z sieci miejskiej. Cicha i spokojna okolica. Osiedle monitorowane. Rowerownia w bloku.

 

W pobliżu sklepy (Żabka, Odido, Lidl, Lewiatan, Selgros), restauracje (Przystanek Myśliwska Burger, Max Premium Burgers, Sumo-Sushi, pizzeria), kawiarnie (Przekawka 2), apteki, salon fryzjerski, ATUT Galicyjska, ORLIK Płaszów, prywatne przedszkole, szkoła podstawowa, przychodnia weterynaryjna, plac zabaw, wybieg dla psów, Park Rzeczny Ogród Płaszów, ogródki działkowe, Wał Wiślany, Centrum Kultury, Galeria M1, Bagry.

 

Ścieżka dla biegaczy i rowerzystów biegnąca po Wale Wiślanym, oddalona jest około 500 metrów od osiedla. Obecnie jest modernizowana i stanie się częścią większej infrastruktury rekreacyjnej biegnącej pomiędzy Tyńcem, a Tarnowem.

W odległości około 250 m od osiedla znajduje się przystanek autobusowy Myśliwska (linia nr 148), oraz Myśliwska szkoła (linia nr 127). W odległości około 900 m od osiedla, przy ul. Lipskiej znajduje się przystanek tramwajowy Rzebika (linia nr 11, 20, 76). Dojazd do Dworca Głównego/Galerii Krakowskiej samochodem zajmuje około 20 min.

 

Cena mieszkania wraz z pełnym wyposażeniem (meble w zabudowie, meble ruchome, AGD tj. lodówka, zmywarka, piekarnik, płyta ceramiczna, okap i pralka):

675 000 zł

 

Dodatkowo:

59 000 zł miejsce postojowe (zakup obligatoryjny).

Łączna cena: 734 000 zł

 

Zakup bez podatku 2% PCC.

Pełna własność z księgą wieczystą, możliwy zakup na kredyt.

 

Oferta na wyłączność

Numer licencji PFRN 30205

Pośredników zapraszam do współpracy.