Nowoczesne 2-pokojowe mieszkanie z windą,
ul. Oboźna 13A, Krowodrza

629 000 zł    15 658 zł/m²

 

Ostatnie mieszkanie w tym budynku!

Idealne na start, blisko uczelni.

Możliwość wydzielenia 2 osobnych pokoi.

Istnieje możliwość wykończenia mieszkania pod klucz w cenie 120 000 zł.

 

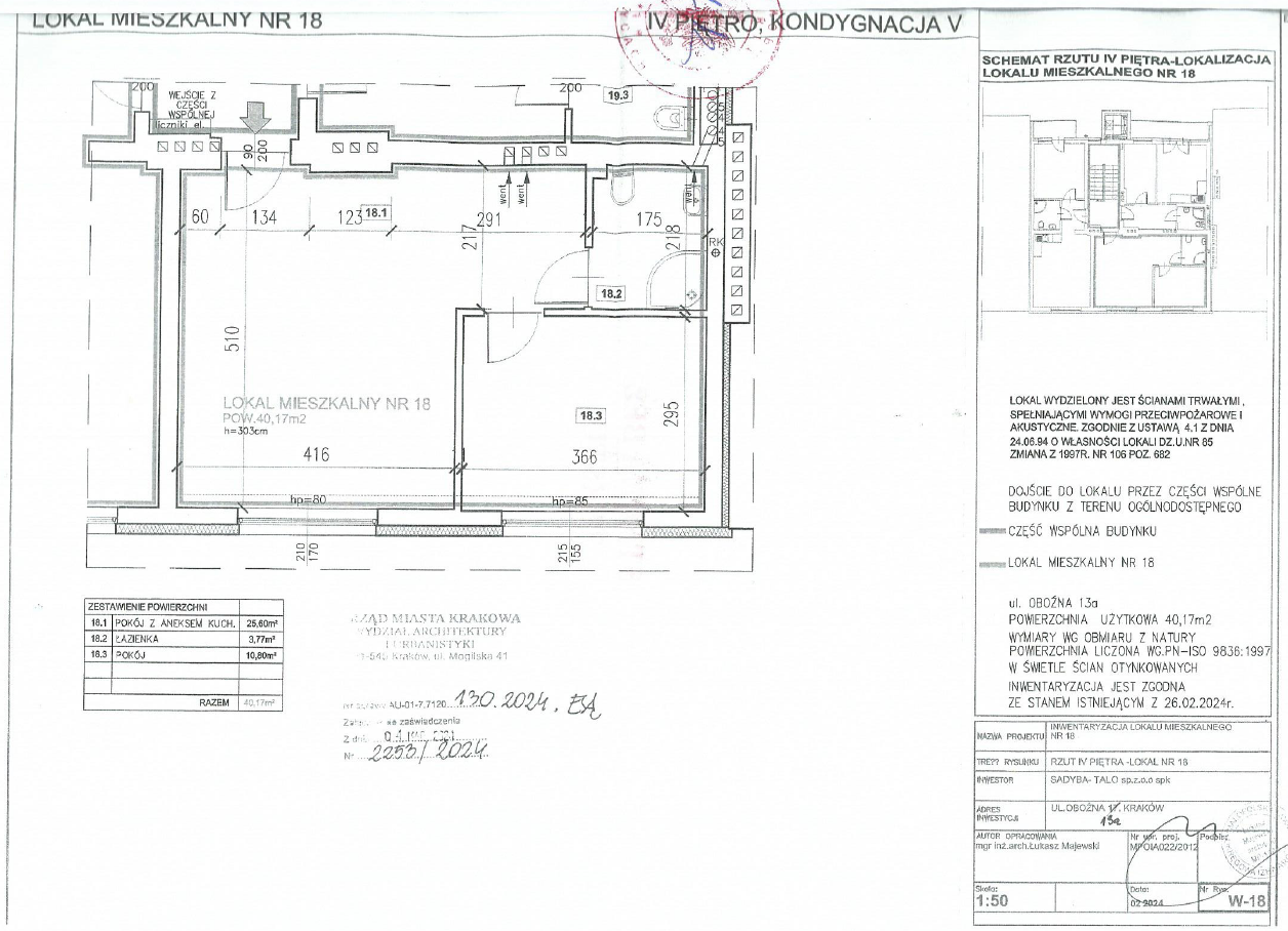
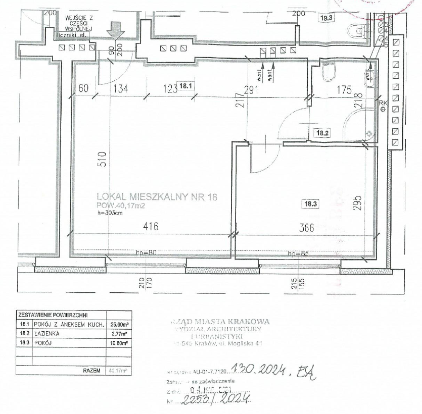
Na sprzedaż 2 pokojowe mieszkanie w stanie deweloperskim o metrażu 40,17 m2, znajdujące się na 4 piętrze świeżo odrestaurowanej kamienicy z windą przy ul. Oboźnej 13 A, Krowodrza.

 

Oferowane mieszkanie jest w stanie deweloperskim z założoną księgą wieczystą i kluczami na już. Załączone zdjęcia są wizualizacją. Kondygnacja, na której znajduje się lokal stanowi całkowicie nową substancję (nadbudowa). Ściany w płytach GK, na podłogach wylewki. Założono grzejniki oraz włączniki i gniazda elektryczne. Wyprowadzono instalacje wodno-kanalizacyjną. Kamienica z cegły z 1930 r. po generalnym remoncie oraz nadbudowie. Między innymi wyremontowano elewację frontową oraz tylną, położono nowy dach, wyremontowano klatkę schodową, wykonano nowy szyb windowy i wstawiono windę. Wszystkie instalacje jak i drzwi wejściowe do mieszkań oraz okna są nowe.

 

Mieszkanie składa się z:

  • salonu z aneksem kuchennym (25,6 m2)
  • osobnej sypialni (10,80 m2)
  • łazienki (3,77 m2).

 

Wysokość mieszkania wynosi około 303 cm. Ekspozycja zachodnia. Brak balkonu. Ogrzewanie i ciepła woda z własnej kotłowni gazowej dla budynku. Czynsz wynosi około 720 zł/miesiąc. Cicha i spokojna okolica.

 

W pobliżu znajdują się m. in. Biedronka, Park Łokietka, Park Kleparski, Nowy Kleparz, Forty Kleparz, Szpital Wojskowy, Medic House, Luxmed, stacja benzynowa, myjnia, szkoła tańca, przychodnia weterynaryjna, szkoła podstawowa, sklepy, restauracje i pizzerie, piekarnie, apteka. W odległości 280 m znajduje się przystanek autobusowy Wrocławska (linie nr 130, 904), a w odległości 860 m Nowy Kleparz (linie nr 120, 140, 189, 337, 420, 513, 669, 904). Dojazd komunikacją miejską do AGH/UR około 16 min, do Uniwersytetu Pedagogicznego około 15 min. Dojazd do centrum komunikacją miejską zajmuje około 13 min.

 

Pełna własność z księgą wieczystą. Możliwość zakupu na kredyt.

 

Cena za mieszkanie w stanie deweloperskim:

  • 629 000 zł
  • Brak podatku PCC 2%

 

Oferta na wyłączność

Numer licencji 30205 PFRN

Pośredników zapraszam do współpracy.

 

Zapraszam do kontaktu!